

Der Vorhang geht auf!
Dieser Moment und die damit verbundene stoffliche Assoziation bestimmen unsere Konzeption. Ein Theaterbesuch hebt uns aus dem Alltag heraus. Der Bühnenraum ist ein Wechselraum, eine Szenerie ständig im Wandel. Zwischen Zuschauerraum und dem Bühnenraum bildet der Vorhang eine weiche, stoffliche Begrenzung. Die Spannung steigert, im Moment des Öffnens beginnt die Interaktion zwischen Schauspielern und Zuschauern. Die Szenerien wandeln sich im gesellschaftlichen Kontext, sie sind wie ein interpretierender Spiegel.

Architektonisches Konzept
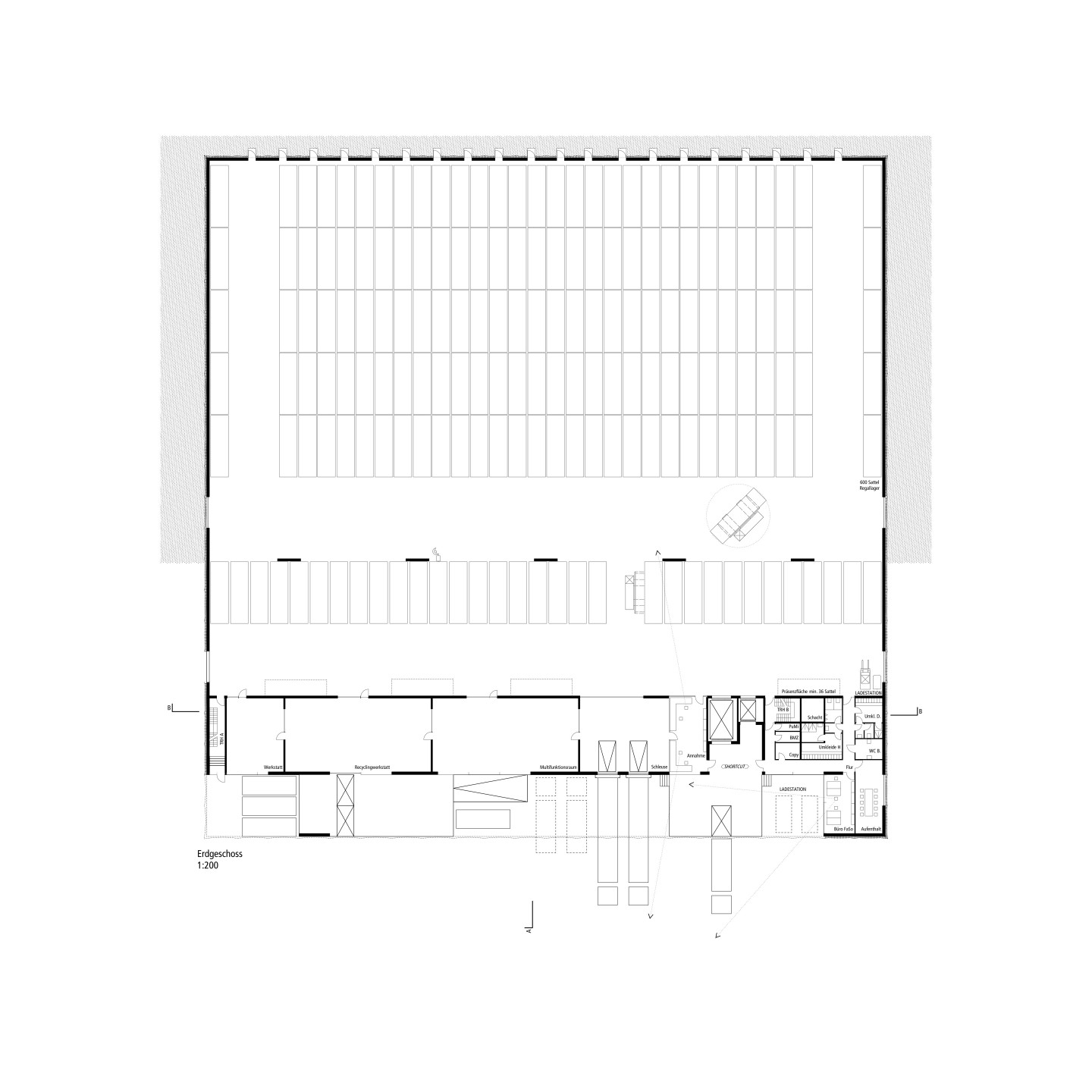
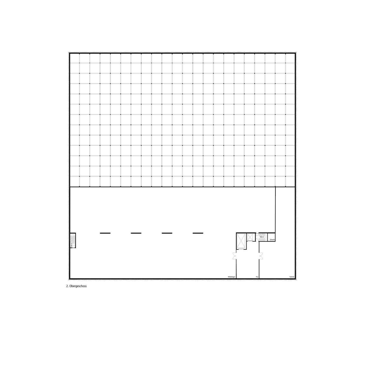
Das Zentrallager verstehen wir als großen Behälter, der Ausstattungen und Szenerien des Theaters erhält und aufbewahrt. Hier werden keine Dinge vorgehalten, sondern ganze Theaterwelten. Die Handlung des Lagerns selbst verlangt eine klare Ordnung, das konstruktive System ist bestimmt durch die Einheit der Sattel. Eine robuste Struktur entspricht dem funktionalen Anspruch. Darüber hinaus verweist die Architektur auf das Theater. Das Stoffliche, assoziativ auf den Vorgang und das Gewand des Schauspielers verweisend, bestimmt die Silhouette und den taktilen Eindruck der Hülle. Die Fassade wandelt sich in der Bewegung dem Annähernden und Passierenden, bezieht die Betrachter mit ein, erweckt die Aufmerksamkeit, und macht neugierig. Über die integrierte LED- Medienfassade kann sich das NTM an prominenter Stelle mit seinem Programm präsentieren.
Der Baukörper bildet einen Massenschwerpunkt und somit einen Orientierungspunkt in der Stadtlandschaft. Gegenüber dem Kulturzentrum Jungbusch platziert, setzt er die kulturelle Spur fort. Im Spannungsfeld zwischen dem Gebäudetypus und kulturellem Inhalt komplettiert das Zentrallager die über die ganze Stadt verteilten Gebäude des NTM.

Städtebau und Außenraum
Der kompakte, auf einem quadratischen Grundriss basierende Solitär, angelehnt an das "mannheimerische" Quadrat, setzt zum einen die Strukturrichtung des Hafengebiets fort, zum anderen vermittelt er zur benachbarten Struktur des Jungbuschs. Das Gebäude ist passend zum Hafengebiet großmaßstäblich und kräftig entwickelt. Über die Ecke wahrgenommen strahlt sein Volumen maximal sichtbar aus. Zusammen mit der in Ziegelbauweise errichteten Halle auf der gegenüberliegenden Straßenseite steht das Bestandsgebäude für historische Kontinuität und auch die für ein Hafengebiet typische unterschiedlichen Maßstäbe.
Zwischen dem künftigen Kostümlager und dem Neubau des Zentrallagers spannt sich ein übersichtlicher Betriebshof auf. Der Recyclinghof wird auf der bahnabgewandten Seite angeordnet, aus dem Sichtfeld genommen. Auch das Reservetor zum Zentrallager mit der zweiten Anlieferungszone liegt hier. Die restliche Fläche kann als Schotterrasen versickerungsfähig ausgebaut werden. Im Norden des Grundstücks kann durch diese Gebäude- und Außenraumdisposition ein Streifen von ca. 3.600 m² zur weiteren Verfügung herausgetrennt werden.

Perspektive (Louis Schmitt / Arge MLA+GHBA)



Konstruktion und Material
Gebäudehülle und Konstruktion werden aus dem nachhaltigen Werkstoff Holz angefertigt. Im Holz wird klimawirksam CO² gespeichert und auf lange Zeit gebunden. Die Holzbauweise benötigt auch weniger fossile Energie für seine Herstellung als andere, konventionelle Baumaterialien. Die für Holzbauweise typische Kombination von integrativen und additiven Dämmebenen in der Hüllkonstruktion von Außenwänden und Dächern kommt zur Ausführung und ergibt eine hochwertige Gebäudehülle. Die Vorfertigung sichert eine kurze Bauzeit und hohe Qualität. Das Material Holz verweist auf den Bühnenbau und gleichzeitig auch auf das Verwahren der Theaterwelten in Holz. Die Konstruktionsweise entspricht in der Fügung seinen Inhalten.
Das Dach des Zentrallagers ist über 52m stützenfrei gespannt. Eingesetzt werden schlanke Fachwerkträger, mit Ober- und Untergürte aus hochfestem, heimischem Buchenholze und Streben/Vertikalen aus konventionellem Fichten- Brettschichtholz. Aufgelagert wird das Dachtragwerk auf in die Außenwand integrierten Buchenholzstützen, deren Querschnitt flächenbündig in die Außenwand einschließt. Im dreigeschossigen Aufbewahrungs- und Lagerbereich wird über eine Spannweite von ca. 17,50m eine Holz-Betonverbunddecke als Rippendecke ausgeführt.

Konstruktion (Holz)



Energetisches Konzept
Das energetische Konzept erfüllt die Kriterien von nachhaltigen Gebäuden durch die Interaktion zwischen innovativer Architektur und innovativer Technik. Ziel ist ein Gebäude mit einer positiven Betriebsbilanz, welches sich den klimatisch geänderten Anforderungen im Innen- und Außenraumklima stellt. Konkret bedeutet dies ein Zusammenspiel von Architektur, Innen- und Außenräumen sowie optimales Raumklima mit möglichst einfachen technischen Mitteln und möglichst wenig externer Energie.
Das Dach des Zentrallagers bietet großes Potential. Es ist gleichzeitig Energieerzeugungsfläche, Energiespeicher und Retentionsfläche mit Biodiversitätsqualität. Die Bauteile sind intensive Dachbegrünung mit Regenwasserspeicher, eine aufgeständerte Photovoltaik-Solaranlagen als Hybridsystem in Kombination mit Fußbodenbeizung in der Lagerhalle und dem Sprinklerwassertank als Energiespeicher. Das Dach als permanenter Wasserspeicher in Kombination intensiver Dachbegrünung trägt zur Artenvielfalt und Biodiversität in der Stadt bei. Zusätzlich kann durch Verdunstung das Klima im und um das Gebäude gesteuert werden. Je nach Anforderung, dient das Dach als permanenter Wasserspeicher und/oder als temporärer Rückhalteraum mit Wetterprognosen gesteuerter Abflussverzögerung als Kälteproduzent oder trocken im Winter als Wärmedämmung. Die Kombination der Dachbegrünung mit der etwas höher aufgeständerten PV-Solarhybridanlage wirkt als effektiver Schutzschicht gegen Extremtemperaturen, UV- und IR-Strahlung, Hagel und Witterungseinflüsse und kühlt die PV-Module über die Verdunstung.
Die aufgeständerte PV-Hybridanlage ist gleichzeitig Stromproduzent und mit dem Solarthermie-Flächenkollektor Wärmeproduzent für die Wärmepumpe zum Heizen und Kühlen. Während der Übergangszeit kann die Industriefußbodenheizung bzw. -kühlung über den Sprinklerwasser-Wärmespeicher direkt bedient werden. Stromüberschüsse werden als Ladestrom für die E-Mobilität genutzt oder ins öffentliche Netz zurückgespeist. Das energetische Konzept ermöglicht es, dass das Gebäude mehr Energie produziert als es verbraucht.

Fassade - Element

Perspektive (Louis Schmitt / Arge MLA+GHBA)